
Byt Vrchlického 22
Byt 3+1 v osobním vlastnictví o celkové užitné ploše 77 m²
v 6.NP ze 7 panelového domu s výtahem
na ulici Vrchlického č. 1005/22, Praha 5, Košíre.
Poloha
Byt se nachází v širším centru Prahy kousek od Andělu naproti Husovým sadům:
Občanská vybavenost
- Potraviny: večerka (2 min.), Lidl (5 min.)
- Pošta: Česká pošta (5 min.), Zásilkovna (2 min.)
- Lekárna (3 min.)
- Divadlo Orfeus (2 min)
- Škola: ZUŠ (2 min.), ZŠ/Montessori/Gymnázium (4 min.)
- Dětská hřišťě: travnaté i betonové (2 min.)
Na nedalekém Andělu je veškerá občanská vybavenost (OC Nový Smíchov, obchody, restaurace, kavárny, parky, kiná, školy, úřady, poliklinika).
Dopravní dostupnost
- zastávka tramvaje (9,10,15,16) a autobusu (153) "U Zvonu" - 150m
- stanice metra (B) "Anděl" - 1400m (resp. 2 zastávky tramvají)
- letiště - 20 min. autem
- nájezd do tunelu Mrázovka a do Strahovského tunelu (městský okruh - cca 1 km)
Spojení s centrem zabezpečuje přímá tramvajová linka (16min. na Václavské náměstí).
Dům
Panelový bytový dům z roku 1971 je v dobrém technickém stavu - prošel rozsáhlou revitalizací:
- zateplení severní fasády
- zesílená plastová okna
- výtah
- vchodové dveře
- vlastní plynová kotelna
- zahrada s dětským pískovištěm ve vnitrobloku






Pozemky
Neoddělitelnou součástí domu jsou pozemky pod domem (parc.č. 1319, 1322, 1323) a v přilehlém okolí (parc. č. 1318) v katastrálním území Košíře (mapa):
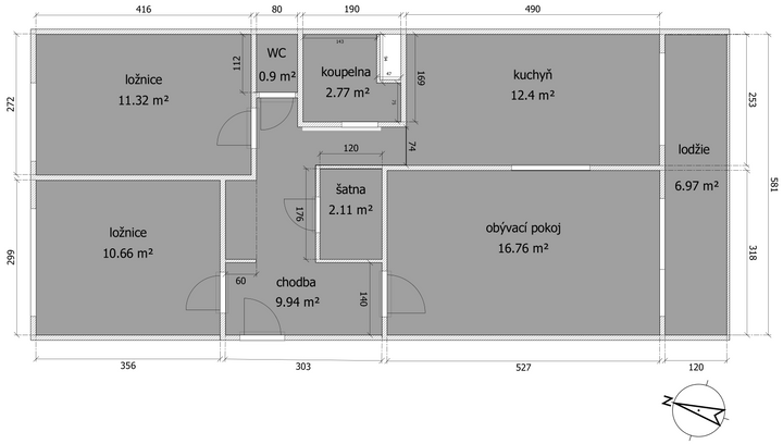
Byt
Podlahová plocha bytu s příslušenstvím (podle starého zákona) je 70 m² + zasklená lodžie 7m².
Dispozice
Byt se skládá ze tří samostatných neprůchozých pokojů, kuchyně, koupelny, WC, šatny a chodby. Do bytu se vchází přes bezpečnostní dveře do chodby (9.94 m²), ve které se nachází vestavěná skříň (150 x 60 cm) a vstupy do všech místností včetne koupelny, WC a šatny. Šatna (2.11 m²) je přímo naproti vestavěné skříni.Obývací pokoj (16.76 m²), ze kterého je přístup na zasklenou lodžii (6.97 m²), je propojen s kuchyní 150cm širokými shrnovacími dveřmi.
V kuchyňi (12.4 m²) se nachází zánovní kuchyňská linka na míru s vestavěným plynovým sporákem s elektrickou troubou, lednička a jídelní kout.
Z prostoru mezi kuchyní a chodbou se vchází přes posuvné dveře do koupelny (2.77 m²), která je vybavena vanou, umývadlem, zrkadlovou skříňkou a přípravou na pračku.
Vedle koupelny se nachází samostatné WC (0.9 m²) se závěsným záchodem.
Na severní straně bytu jsou dva samostatné pokoje (10.66 m² a 11.32 m²).
Naproti bytu se nachází samostatná spíž (1 m²).
K bytu náleží sklep (2.4 m²) v podzemním podlaží.
Internet je dostupný od radlice.net, opton a UPC.
Rekonstrukce
Byt je po částečné rekonstrukci:
- zděné jádro (samostatné závěsné WC, vana v koupelně)
- podlahy (dlažba v kuchyni a jádře, marmoleum v pokojích)
- rozvody vody a elektřiny
- kuchyňská linka se zabudovanými spotřebiči Fagor (plynový sporák, elektrická trouba, digestoř)
- interiérové dveře
- bezpečnostní vstupní dveře Next

















Orientace
Lodžie (obývací pokoj, kuchyň) je orientována na jih do ulice Vrchlického s výhledem na Husovy sady:
Orientace oken ložnic je na sever do vnitrobloku s výhledem na zahradu a cihlové činžovní domy:
Náklady
Měsíční zálohy bez elektřiny a plynu jsou 2663 Kč z toho fixní náklady (FO, správa a provoz SVJ, pojištění, revize, údržba) činí 2124 Kč a spotřební náklady (služby, topení, voda) činí 539 Kč za osobu.





